Wichtige Baudaten
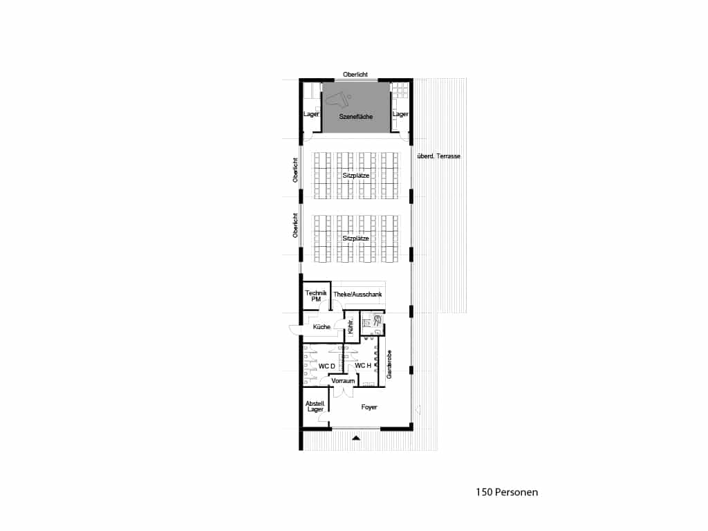
| Bauaufgabe: | Erweiterbares Gemeinschaftshaus für die Stadt Mechernich im Baukastenprinzip (für 80 oder 150 Personen) |
| Standort: | 53894 Mechernich |
| Bauzeit: | in der Planungsphase |
| Nutzfläche: | 240 m² (80 Pers.) / 375 m² (150 Pers.) |
| Bruttorauminhalt: | 1140 m³ / 2150 m³ |
| Bauweise: | Holzständerbauweise |





